Studio Zimm, led by School of Architecture faculty Michael Zimmerman, teamed up with FORMA to design a project for the Los Angeles Small Lots, Big Impacts design competition. Their proposal was highlighted among 14 professional teams based in L.A. who received Special Recognition for their exemplary work on both sites within the Gentle Density category, demonstrating how 2-9 units can better utilize infill sites in the city. Their entry received this recognition among the total of 358 submissions from 36 different countries.

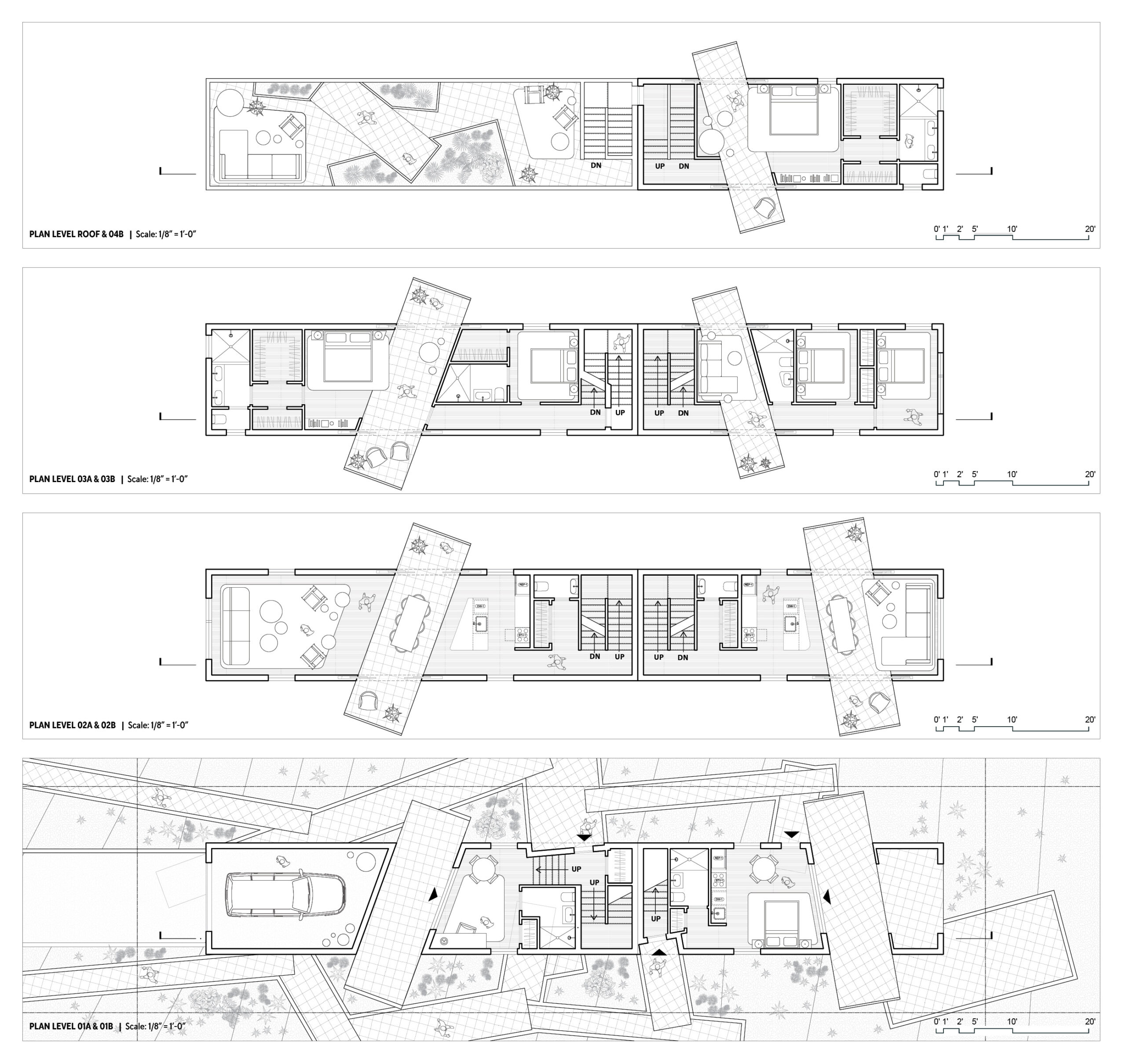
Their project Slim GIM (Gradually Inclined Multi­Family) reconsiders the residential duplex typology within a tall and skinny volume punctured by exterior balconies and bold color play. Taking advantage of the long lot and generous height limit, the narrow structure pulls away from the side setbacks for increased access to light and air within its interiors. In part a fire-separation strategy and in part an exercise in compact density, the bar volume houses two multi-level primary units stacked atop a one-car garage and a JADU for increased programmatic flexibility and income generation. The compact footprint is lodged into the sloping hillside, firmly rooting the house in the ground. The drought tolerant landscape of cascading terraces, retaining walls, stairs and ramps provides defensible space, acting as a hardscape break and aids in water-retention strategy during scarce but increasingly severe rainstorms.

The Small Lots, Big Impacts is an ambitious, first-of-its-kind initiative to turn vacant small lots into new starter homes, organized by cityLAB-UCLA in collaboration with LA4LA, and the City of Los Angeles, including the Mayor’s office, the Housing Department, and City Council. The competition demonstrates ideas for designing and building a type of housing that is sorely needed in Los Angeles today: new starter homes for the 21st century. The last time the housing industry produced small, compact homes that were attainable for everyday people was just following WWII. In this competition, the submissions update that old approach by re-introducing smaller, affordable homes but doing so on infill lots that utilize recent legislation to hold multiple units, make better use of our limited urban land, and still fit into their residential surroundings.